CENTRE DE CONGRÈS, RABAT


BOFILL TALLER DE ARQUITECTURA
, CENTRE DE CONGRES,  RABAT


The Conference Centre at Mohammed VI Polytechnic University in Rabat, designed by Ricardo Bofill Taller de Arquitectura (RBTA), is part of a campus development plan focused on giving this young institution a new identity through its monumental architecture and enhancing the overall image and quality of life on campus.


Planned to be constructed some time between the first and second phases of the master plan, the Conference Centre acts as a lynchpin connecting the two “arms” of the campus – an avenue of buildings and a more compact complex – to facilitate visitor circulation.


A sequence of arcades set along the perimeter of the site evokes this idea of transition. The continuity is further underlined by the glossy tiling on the floors and façades, which also extends into the interior of the building, creating a natural progression from the patio to the entrance hall. The choice of materials and design of the furnishings on the inside are just as important as the urban strategy, conforming with a vision of “total design”.

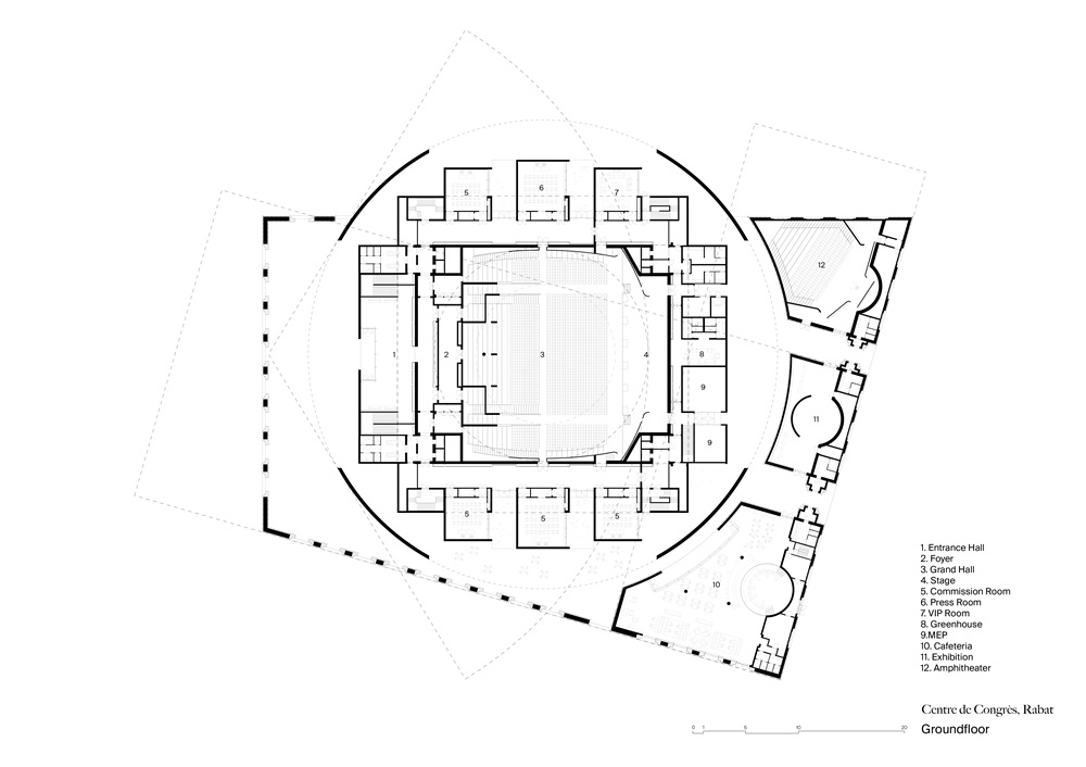
Two pure geometric forms define the layout of the complex: a circle and square. The circle, a large self-supporting wall, forms a ring around the main auditorium. The space between the two structures accommodates several smaller auditoriums, meeting rooms, bars/coffee bars, circulation areas and services.


Seating and meeting spaces are also distributed around the outdoor courtyards, affording views of the sports fields and surrounding woodlands. Large arches are carefully carved into the circular wall so they only touch the ground at the corners of the building, creating a sort of opening and invitation into the Conference Centre, which is designed to be a welcoming, dynamic space conducive to synergic interaction between different people and activities.


Client: UM6P, OCP Group, Project: Taller de Arquitectura; CEO:  Rablo Bofill; Design Principal: Hernan Cortes; Management: Javier Guardiola; Landscape Design: Vivian Rotie; Interior Design: Graciana de Bernardi; Site Supervisor: Polentzi Barrera; Collaborators: 380-750nm, BD Barcelona Design, JESA, PEUTZ, ROYTH, SIGNES; Team Members: Lucia Alija, Nicolas Architector, Sara Atristan, Artur Akopov, Gianluca Basile, Laurie Bello, Cristian Camacho, Luis Carpio, Alexandra Cohen, Sara Cui, Nemesios Frangos, Yamila Gianonne, Patricia Gomez, Azeddine Guerouani, Javier Irigaray, Zineb Idrissi, Samia Joulali, Renata Keller, Lina Kakaletsi, Katarzina Kretek, Achraf Lahmadi, Chungin Lee, Martiño Lorenzo, Ferran Montesinos, Stanislau Naudeau, Olivia Pazos, Gabriele Plinio, Javier Pino Fernandez, Giuliano Scigliano, Minghei Seol, Vivian Sirito, Hind Soubat, Michele Tota, Joaquin Traverso, Clara Vila, Macarena Velasco, Smita Waghmarae.
Photography Gregori Civera, Max Farago, Hernán Cortés