BAROZZI VEIGA, DYNAFIT HEADQUARTERS, KIEFERSFELDEN, GERMANY

Barozzi Veiga, an architecture firm set up in Barcelona in 2004 by the Italian architect Fabrizio Barozzi (1976) and his Spanish counterpart Alberto Veiga (1973), designed the Dynafit headquarters in Kiefersfelden, Germany, a visually striking building set in the rolling landscape of Upper Bavaria featuring a complex combination of monumental geometric forms.

The project is characterized by its almost abstract structural design made of a fusion of two pyramidal structures, clearly visible from the highway connecting Germany and Austria. A structure that is both intimate and monumental, with high vertical surfaces that are quite striking and less imposing sloping sides.

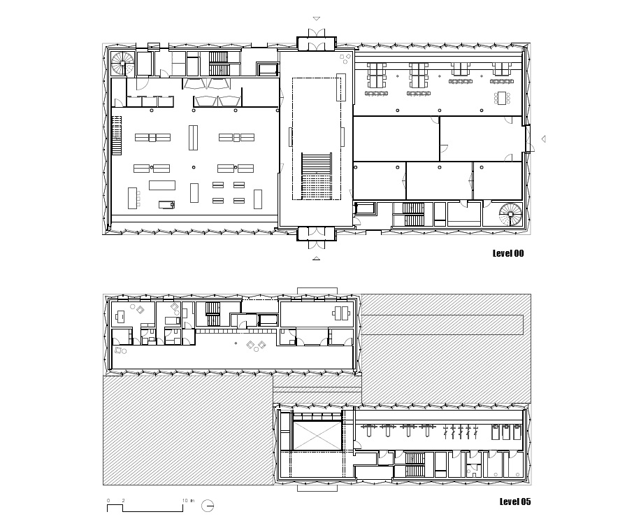
Despite its seemingly simple structural design, its section conveys a rich sense of space that enhances the experience of this multifunctional building for both staff and visitors, encouraging reciprocal interaction through the variety of perspectives opened up by the different spaces.

The interior is designed like a system of bright and efficient open spaces made out of a simple structure focused on maximum efficiency by placing service units at opposite ends of each floor.

Referencing the brand's products, renowned for its high-end mountain sports equipment, the concepts of lightness, efficiency, and technology feature in the design of the facade system, which protects the building from solar radiation while simultaneously offering an uninterrupted view of the surrounding environment.

The diagonal metal façade grid accentuates how the structural geometry is perceived and gives the complex a detailed and complex external image, which, depending on the reflected light, transforms a simple geometric form into a dynamic visual experience.

Client: Dynafit, Mountain Experience Beteiligungs-Holding; Project: Barozzi Veiga - Fabrizio Barozzi, Alberto Veiga; Team (competition): Yorgos Apostolopoulos, Andrea Bergamini, Paola Calcavecchia, Oskar Jobin, Kim-Lou Monnier, Alessandro Lussignoli, Rodrigo Martinez, Martin Meinecke, Miguel Pereira Vinagre, Toni Poch, Verena Recla, Andrei Sashko, Rob Scott, Nelly Vitiello; Team (project development): Verena Recla; Andrea Bergamini, Paola Calcavecchia, Caterina Delaini, Marta Grządziel, Hannes Lukesch, Vasco Marcolin, Cristian Munteanu, Sofia Pozzoli, Maxime Soquet, Elvira Turek, Maria Ubach, Anina Weber; Project manager and quantity surveyor: Plan Team; Project controlling: Plan Team; Structural engineer: Bergmeister Ingenieure; Services engineer: SHP - Stiefmüller Hohenauer & Partner; Building physics: SPEKTRUM Bauphysik & Bauökologie; Sustainability consultant: SPEKTRUM Bauphysik & Bauökologie; Facade consultant: Knippers Helbig; Acoustic consultant: SPEKTRUM Bauphysik & Bauökologie; Lighting consultant: Bartenbach; Fire consultant: K33 Brandschutz -Riedner Wagner+Partner; Landscape architect: Henning Larsen. Photographs: Simon Menges & Nino Tugushi, Brigida Gonzál

